Timbercrest - Kirkwood - Residential Renovation & Addition

Project Description

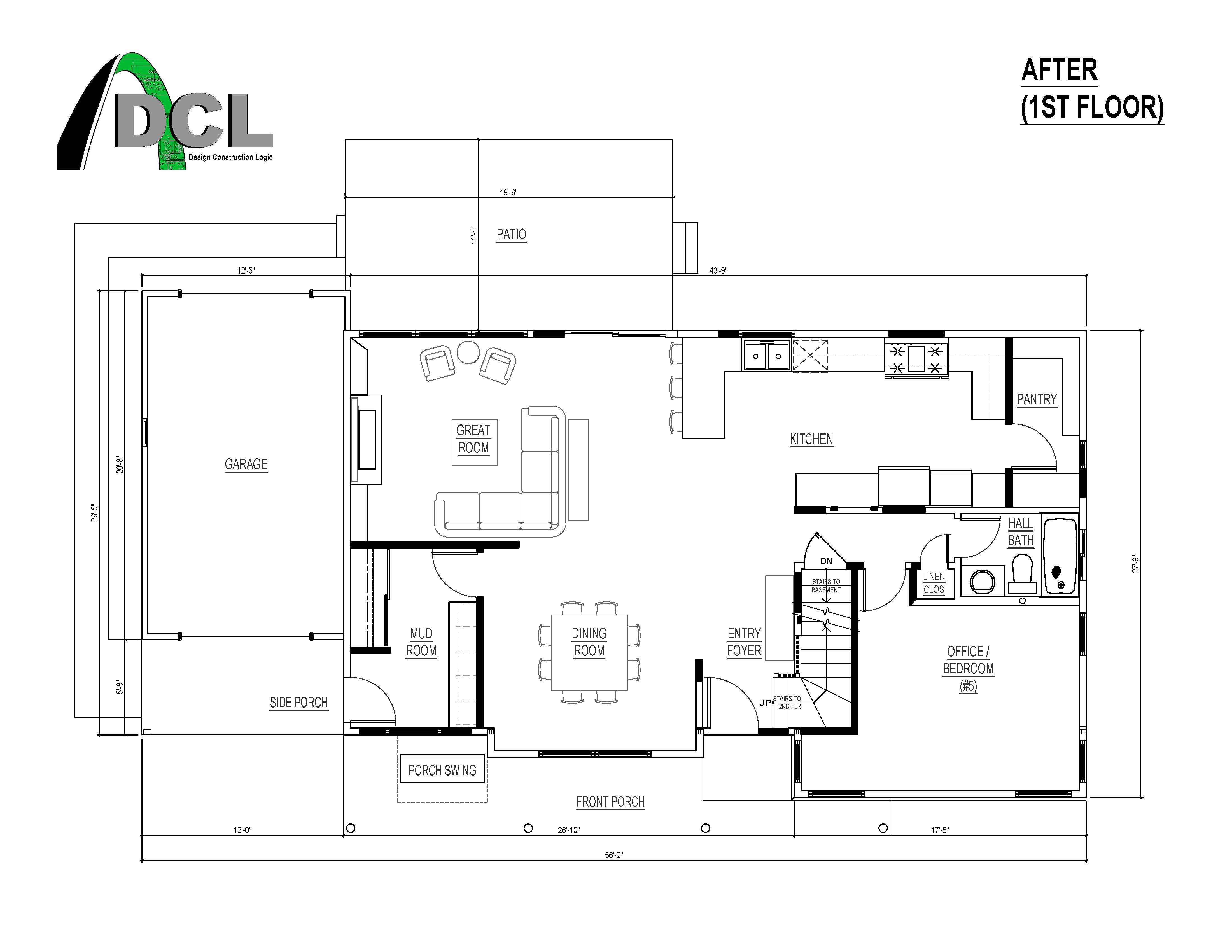
Project was to work with homeowner and General Contractor to prepare a set of Permit-Bid drawings to add a 2nd floor to a small home and create an open concept plan on the 1st floor to meet the needs of a modern family

Project Details

  • Original House: 1,143 sq. ft
  • (3 bedroom 1 bath)
  • 2nd Floor Addition: 1,379 sq. ft
  • Total Living area: 2,379 sq. ft
  • (5 bedroom 3 bath)
  • Relocated existing stairs leading to the basement
  • Added front porch
  • Open Concept 1st floor
  • Walk-in pantry
  • 2nd floor Master Suite
  • 2nd floor Laundry Room

Copyright © DCLSTL 2016—