Berkley Manor - Des Peres - Residential Addition

Project Description

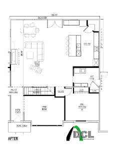
This growing, multi-generation family needed more space. We worked with the home owner and the general contractor to redesign the first floor layout which included an addition onto the back of the house. The additional square footage gave this family the room they needed to come together in a modern open concept living room/ kitchen area.

Project Details

  • Designed addition (approx. 500 sqft.)/li>
  • Relocated basement stairs
  • Created mudroom/laundry room
  • Open concept living room/kitchen